- 3
Quartos
- 1
Suites
- 3
Casas de banho
- 1
Garagem
Descrição
NH CL 20550
Apartamento T3 | Novo | Box p/ 2 carros | 70m da Praia | Póvoa de Varzim
Apresento-lhe um excelente apartamento T3, novo, localizado numa das principais artérias da cidade da Póvoa de Varzim, a cerca de 70m da praia.
Este excelente apartamento, numa das zonas mais nobres da cidade, com grande luminosidade, dispõe de 121m2 de área bruta privativa, possuindo ainda um lugar de garagem.
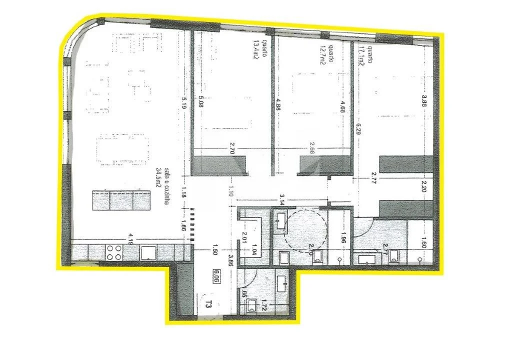
Este apartamento T3, junto à praia da Póvoa de Varzim, está situado ao nível do R/C e está dividido da seguinte forma:
- Entrada com armário embutido e porta de segurança;
- Ampla sala de convívio e de jantar (34,5m2), com grandes janelas, em open space com a cozinha mobilada e totalmente equipada (placa, forno, exaustor, micro-ondas, combinado e máquina da louça);
- 1 WC de serviço de apoio à zona social;
- Despensa;
- 1 Suite (17m2), com closet e wc com base de chuveiro dupla;
- 1 quarto com roupeiro embutido (12,7m2);
- 1 quarto com roupeiro embutido (13,4m2);
- WC completo com base de chuveiro, de apoio aos 2 quartos;
- Box p/ 2 carros.
O imóvel dispõe ainda…
- Tetos em pladur com focos embutidos.
- Caixilharias em alumínio, com vidros duplos.
- Estores térmicos e elétricos.
- Aquecimento com piso radiante e pré-instalação de ar condicionado.
- Portas de segurança.
- Videoporteiro.
- Elevador.
- Todas as divisões com áreas generosas e bons acabamentos.
Marque a sua visita!
Venha conhecer esta e outras oportunidades de negócio neste mesmo empreendimento.
Não deixe de conhecer este imóvel, situado na Póvoa de Varzim e tão perto da praia!
Até já!
NOTA:
- A localização do imóvel no mapa do nosso site e restantes plataformas, pode não ser a exata, no entanto sempre aproximada à zona de referência.
- O valor de venda do imóvel não inclui o mobiliário, bem como outros objetos de decoração, sistemas e equipamentos não mencionados na descrição do imóvel.
─────────────────────────────────────────────────────────────────
A NOSSA ORIGEM
Há 500 anos, a quilha da Nau indicou-nos o caminho.
Descobrimos o que outros nem sequer sonhavam ou pensavam existir. Fomos os primeiros.
500 anos depois continuamos a encontrar o que os outros, apesar de acreditarem ou saberem que existe, não conseguem ir além da procura.
Hoje como ontem, fiéis à quilha da Nau, continuamos a ser os primeiros.
Os primeiros a descobrir a casa, a terra, o recanto, o lugar ideal dos que nos procuram.
AO COMPRAR COM A NAU HOUSE
Tem ao seu dispor uma equipa de consultores imobiliários dedicados, experientes, especializados e prontos a ajudá-lo em todas as etapas do processo.
Disponibiliza um serviço profissional desde a recolha de documentação, verificação da mesma, foto e vídeo reportagem, marketing e apoio jurídico.
Cria sinergias para ir de encontro às suas expectativas.
Prioriza a sua privacidade atuando no mercado imobiliário com segurança e profissionalismo de uma empresa de confiança.
Em Equipa, ✚ Simples ✚ Profissional ✚ Eficaz
Brochura do imóvel
- Detalhes
Visão Geral do Imóvel
-
Quartos 3
-
Suites 1
-
Casas de banho 3
-
Garagem 1
-
Área Total (m²) 121
-
Área útil 120
-
Área de construção 121
-
Cidade Póvoa de Varzim
- Classe energética
Certificação energética
-
Classe Energética: A
- A+
- | Classe energética AA
- B
- B-
- C
- D
- E
- F
- Características
Detalhes a Considerar
- Plantas
Detalhes do layout
- Mortgage Calculator
Estimate Payments
-
Pagamento inicial
-
Montante do empréstimo
-
Pagamento mensal da hipoteca
-
IPTU
-
Seguro Residencial
-
PMI
-
Taxas mensais da HOA
Looking to Buy or Sell? Get Expert Guidance Today!
Contact us now for a free consultation and let our team of experts guide you through the process.
- Visita ao imóvel
Agende uma Visita
- 360° Virtual Tour
Immersive Experience
- Contact Agent
Get Expert Assistance
- Imóveis semelhantes
Apartamento | Centro | Vila do Conde
- 598.000€
- Etiqueta de identificação: NHPT 20946
Camas: 3
Banhos: 2
Apartamento T2 | Árvore | Vila do Conde
- 295.000€
- Etiqueta de identificação: NHPT 20945
Camas: 2
Banho: 1
Apartamento T3 | Junto à praia | Vila do Conde
- 370.000€
- Etiqueta de identificação: NHPT 20944
Camas: 3
Banhos: 2
Garagem: 1
Terreno P/Construção | 835 M2 | Vila Nova de Gaia
- 135.000€
- Etiqueta de identificação: NHPT 20943
