Terreno Urbano | 966 m2 | Maia

  • 158.000€
NHPT 20639

Principais

ID: NHPT 20639
  • 966

Descrição

NH MA 20639

Excelente terreno urbano, para venda, que permite a construção de moradia de um ou dois pisos.

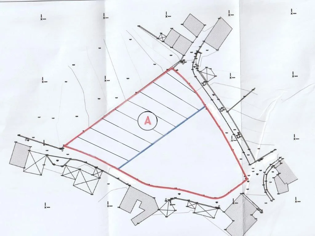
Este terreno para venda localiza-se em Ardegães, freguesia de Águas Santas, próximo da Cidade da Maia.

O terreno tem 966 m2 de área total e 570 m2 de área de implantação. Estes 570 m2 são também a área de construção permitida.

As confrontações do terreno para venda na Maia são, lateralmente, com mais dois lotes de terreno. As duas frentes mais pequenas têm mais de 20 metros de comprimento cada, e confrontam com duas vias de acesso.

Este terreno para venda localiza-se na Maia, em zona com ótimas acessibilidades, seja pela Estrada Nacional 107, que o leva ao centro da Cidade da Maia e a Ermesinde, seja pelas autoestradas A41 e A3.

Mais especificamente, o centro de Ardegães é servido por comércio, serviços e transportes públicos, sendo de destacar a proximidade ao centro comercial Maia Shopping.

Não perca esta oportunidade de negócio!

Contacte já para saber mais informações e agendar visita.

NOTA: 

  • A localização do imóvel no mapa do nosso site e restantes plataformas, pode não ser a exata, no entanto sempre aproximada à zona de referência.
  • O valor de venda do imóvel não inclui o mobiliário, bem como outros objetos de decoração, sistemas e equipamentos não mencionados na descrição do imóvel.

─────────────────────────────────────────────────────────────────

A NOSSA ORIGEM
Há 500 anos, a quilha da Nau indicou-nos o caminho.
Descobrimos o que outros nem sequer sonhavam ou pensavam existir. Fomos os primeiros.
500 anos depois continuamos a encontrar o que os outros, apesar de acreditarem ou saberem que existe, não conseguem ir além da procura.
Hoje como ontem, fiéis à quilha da Nau, continuamos a ser os primeiros.
Os primeiros a descobrir a casa, a terra, o recanto, o lugar ideal dos que nos procuram.

AO COMPRAR COM A NAU HOUSE
Tem ao seu dispor uma equipa de consultores imobiliários dedicados, experientes, especializados e prontos a ajudá-lo em todas as etapas do processo.
Disponibiliza um serviço profissional desde a recolha de documentação, verificação da mesma, foto e vídeo reportagem, marketing e apoio jurídico.
Cria sinergias para ir de encontro às suas expectativas.
Prioriza a sua privacidade atuando no mercado imobiliário com segurança e profissionalismo de uma empresa de confiança.

Em Equipa, ✚ Simples ✚ Profissional ✚ Eficaz


Detalhes

Atualizado em Agosto 1, 2025 a 9:39 am
  • ID: NHPT 20639
  • Preço: 158.000€
  • Área do imóvel: 966 m²
  • Tipo de imóvel: Terreno
  • Finalidade: Venda
  • Área de construção: 570
  • Área de Implantação: 570
  • Área Total do Terreno: 966

Localização

  • Morada NHPT 20639
  • Cidade Cidade da Maia, Maia
  • Distrito Porto
  • País Portugal

Compare listings

Comparar
NauHOUSE
  • NauHOUSE
Call Now Button