- 2
Quartos
- 2
Casas de banho
- 1
Garagem
Vídeo
Descrição
NH CL 20878
Apartamento T2 | Póvoa de Varzim – Centro | C/ Elevador e Garagem Fechada
Para investimento ou habitação própria
Apresento-lhe, para VENDA, um simpático apartamento T2, em ótimo estado de conservação, localizado num piso superior e no centro da cidade da Póvoa de Varzim, ideal para investimento ou até habitação própria permanente num futuro próximo.
Com uma excelente orientação solar, o imóvel possui três frentes (sul, poente e norte), garantindo luminosidade natural ao longo de todo o dia, assim como um bom ambiente térmico. Com a particularidade de possuir uma varanda fechada com acesso pela sala e pela cozinha, proporcionando um espaço extra de conforto.
O interior do apartamento é espaçoso, com uma distribuição inteligente, oferecendo um ambiente moderno e funcional.
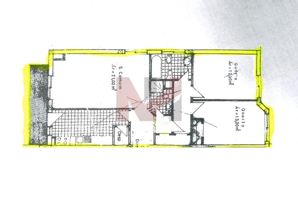
A área social, perfeitamente separada da área privativa, é composta por:
- hall de entrada e distribuição espaçoso e com roupeiro de apoio;
- sala com lareira (c/recuperador de calor), com 21 m2, e acesso a uma varanda partilhada com a cozinha;
- cozinha ampla mobilada e parcialmente equipada (placa, forno, exaustor, esquentador e microondas), com apoio de uma despensa;
- WC completo (com base de chuveiro) de apoio à zona comum.
Na área privativa encontramos:
- Dois quartos, um com 12,5 m2 e outro com 13m2, sendo que este último possui um roupeiro embutido, sendo igualmente confortáveis;
- Um WC completo, com banheira, de apoio aos quartos.
Outros pormenores:
- Apartamento dispõe de gás natural;
- Radiadores elétricos na sala e nos quartos;
- Pavimento em madeira em toda a zona privativa, sala e hall de entrada. A cozinha, a varanda e os WC´s com pavimento em cerâmica;
- Caixilharia dupla nos quartos e sala e vidros duplos na marquise.
O apartamento será vendido com uma garagem fechada (20m2), na cave do edifício, sendo o mesmo servido por um elevador até ao Rés-do-chão.
Com acabamentos preservados e um layout que privilegia o conforto e a praticidade, este apartamento é a escolha perfeita para quem deseja viver no centro da cidade, numa zona tranquila, mas com todos os serviços à disposição e boa acessibilidade às principais vias rodoviárias.
O empreendimento, onde se localiza, sofrerá obras de reabilitação com início previsto ainda para o primeiro semestre de 2025, e cujo pagamento será da responsabilidade do atual proprietário.
Não perca esta oportunidade e agende a sua visita!
Espero por si!
NOTA:
- A localização do imóvel no mapa do nosso site e restantes plataformas, pode não ser a exata, no entanto sempre aproximada à zona de referência.
- O valor de venda do imóvel não inclui o mobiliário, bem como outros objetos de decoração, sistemas e equipamentos não mencionados na descrição do imóvel.
─────────────────────────────────────────────────────────────────
A NOSSA ORIGEM
Há 500 anos, a quilha da Nau indicou-nos o caminho.
Descobrimos o que outros nem sequer sonhavam ou pensavam existir. Fomos os primeiros.
500 anos depois continuamos a encontrar o que os outros, apesar de acreditarem ou saberem que existe, não conseguem ir além da procura.
Hoje como ontem, fiéis à quilha da Nau, continuamos a ser os primeiros.
Os primeiros a descobrir a casa, a terra, o recanto, o lugar ideal dos que nos procuram.
AO COMPRAR COM A NAU HOUSE
Tem ao seu dispor uma equipa de consultores imobiliários dedicados, experientes, especializados e prontos a ajudá-lo em todas as etapas do processo.
Disponibiliza um serviço profissional desde a recolha de documentação, verificação da mesma, foto e vídeo reportagem, marketing e apoio jurídico.
Cria sinergias para ir de encontro às suas expectativas.
Prioriza a sua privacidade atuando no mercado imobiliário com segurança e profissionalismo de uma empresa de confiança.
Em Equipa, ✚ Simples ✚ Profissional ✚ Eficaz
Brochura do imóvel
- Detalhes
Visão Geral do Imóvel
-
Quartos 2
-
Casas de banho 2
-
Garagem 1
-
Área Total (m²) 113
-
Área útil 89
-
Área de construção 113
-
Ano de construção 1995
-
Cidade Póvoa da Varzim
- Classe energética
Certificação energética
-
Classe Energética: C
- A+
- A
- B
- B-
- | Classe energética CC
- D
- E
- F
- Características
Detalhes a Considerar
- Plantas
Detalhes do layout
- Mortgage Calculator
Estimate Payments
-
Pagamento inicial
-
Montante do empréstimo
-
Pagamento mensal da hipoteca
-
IPTU
-
Seguro Residencial
-
PMI
-
Taxas mensais da HOA
Looking to Buy or Sell? Get Expert Guidance Today!
Contact us now for a free consultation and let our team of experts guide you through the process.
- Visita ao imóvel
Agende uma Visita
- 360° Virtual Tour
Immersive Experience
- Contact Agent
Get Expert Assistance
- Imóveis semelhantes
Apartamento | Centro | Vila do Conde
- 598.000€
- Etiqueta de identificação: NHPT 20946
Camas: 3
Banhos: 2
Apartamento T2 | Árvore | Vila do Conde
- 295.000€
- Etiqueta de identificação: NHPT 20945
Camas: 2
Banho: 1
Apartamento T3 | Junto à praia | Vila do Conde
- 370.000€
- Etiqueta de identificação: NHPT 20944
Camas: 3
Banhos: 2
Garagem: 1
Terreno P/Construção | 835 M2 | Vila Nova de Gaia
- 135.000€
- Etiqueta de identificação: NHPT 20943
