- 2
Quartos
- 1
Suites
- 2
Casas de banho
Descrição
NH CL 20976
Para habitação própria ou para usufruir das suas férias perto da praia!
Excelente oportunidade de investimento em apartamento de alto padrão, novo, em pleno centro de Vila do Conde, e com a praia ali tão perto.
Com uma disposição solar de excelência, 2 frentes (nascente, poente), inserido num condomínio de referência e com todos os serviços nas proximidades.
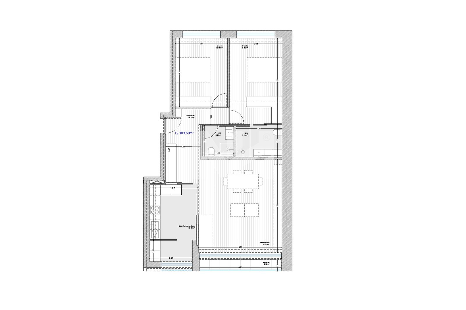
Situado ao nível do 2º piso, de tipologia T2, o imóvel ideal para quem valoriza centralidade e comodidade. Com cerca de 104 m2 de área bruta privativa, uma pequena varanda na sala, a nascente e lugar de garagem para uma viatura, na cave.
Características:
- Espaçoso Hall de Entrada;
- Sala com 27 m2e acesso a varanda, a nascente;
- Cozinha, totalmente mobilada e equipada, marca Siemens ou equivalente (placa de indução, forno, exaustor, microondas, máquina da louça e frigorífico combinado), com zona de lavandaria e acesso à sala;
- 1 Suite, 21 m2, a poente, com acesso a varanda, com roupeiros embutidos e WC completo com base de chuveiro;
- 2º Quarto, 13 m2, a poente, com roupeiros embutidos;
- WC completo, de apoio à área social e ao 2º Quarto;
- Lugar de garagem, com dimensão ideal para um carro, proporcionando segurança e arrumação.
O imóvel possui ainda:
- fachada ventilada com placas de grés-porcelâmico;
- caixilharias em perfis minimalistas de alumínio, com corte térmico e acústico, com envidraçado duplo e oscilo batentes;
- estores térmicos e elétricos;
- sancas para cortinas com iluminação Led;
- tetos em gesso cartonado hidrófugo;
- pavimento em soalho composto, Carvalho Francês;
- sistema de climatização por pavimento radiante ou ar condicionado por condutas (a definir);
- sistema de AQS através de bomba de calor (interior e exterior).
Localização privilegiada: Situado numa zona Premium de Vila do Conde, onde reina a tranquilidade, e com excelentes acessos, próximo de comércio, serviços e transportes.
Não perca esta oportunidade de investimento! Entre em contacto para mais informações ou agendar uma visita. Espero por si!
NOTA:
- A localização do imóvel no mapa do nosso site e restantes plataformas, pode não ser a exata, no entanto sempre aproximada à zona de referência.
- As fotos 3D apresentadas neste anúncio não são vinculativas ao imóvel apresentado, sendo meramente informativas quanto aos detalhes de material e acabamentos.
─────────────────────────────────────────────────────────────────
A NOSSA ORIGEM
Há 500 anos, a quilha da Nau indicou-nos o caminho.
Descobrimos o que outros nem sequer sonhavam ou pensavam existir. Fomos os primeiros.
500 anos depois continuamos a encontrar o que os outros, apesar de acreditarem ou saberem que existe, não conseguem ir além da procura.
Hoje como ontem, fiéis à quilha da Nau, continuamos a ser os primeiros.
Os primeiros a descobrir a casa, a terra, o recanto, o lugar ideal dos que nos procuram.
AO COMPRAR COM A NAU HOUSE
Tem ao seu dispor uma equipa de consultores imobiliários dedicados, experientes, especializados e prontos a ajudá-lo em todas as etapas do processo.
Disponibiliza um serviço profissional desde a recolha de documentação, verificação da mesma, foto e vídeo reportagem, marketing e apoio jurídico.
Cria sinergias para ir de encontro às suas expectativas.
Prioriza a sua privacidade atuando no mercado imobiliário com segurança e profissionalismo de uma empresa de confiança.
Em Equipa, ✚ Simples ✚ Profissional ✚ Eficaz
Brochura do imóvel
- Detalhes
Visão Geral do Imóvel
-
Quartos 2
-
Suites 1
-
Casas de banho 2
-
Área Total (m²) 121
-
Área útil 104
-
Área de construção 121
-
Cidade Vila do Conde
- Classe energética
Certificação energética
-
Classe Energética: A+
- | Classe energética A+A+
- A
- B
- B-
- C
- D
- E
- F
- Características
Detalhes a Considerar
- Acesso Mobilidade Reduzida
- Bomba de Calor
- Caixilharia - Alumínio
- Centro Cidade
- Cozinha - Equipada
- Cozinha - Mobilada
- Elevador
- Este (Nascente)
- Exaustor
- Forno
- Frigorífico Combinado
- Lugar de Garagem
- Maq. Lavar Louça
- Micro-ondas
- Oeste (Poente)
- Pavimento - Madeira Maciça
- Persianas - Elétricas
- Piso Superior
- Placa de Indução
- Porta Segurança
- Portões Elétricos
- Rede Água Potável
- Rede Elétrica
- Rede Fibra
- Rede Gás Canalizado
- Rede Saneamento
- Vídeo Porteiro
- Vista Cidade
- Vista Jardim/Parque
- Plantas
Detalhes do layout
- Mortgage Calculator
Estimate Payments
-
Pagamento inicial
-
Montante do empréstimo
-
Pagamento mensal da hipoteca
-
IPTU
-
Seguro Residencial
-
PMI
-
Taxas mensais da HOA
Looking to Buy or Sell? Get Expert Guidance Today!
Contact us now for a free consultation and let our team of experts guide you through the process.
- Visita ao imóvel
Agende uma Visita
- 360° Virtual Tour
Immersive Experience
- Contact Agent
Get Expert Assistance
- Imóveis semelhantes
Apartamento | Alto Padrão | T2 | Jardins Júlio Graça
- 613.000€
- Etiqueta de identificação: NHPT 20981
Camas: 2
Banhos: 2
122
Apartamento | Alto Padrão | T2 | Jardins Júlio Graça
- 613.000€
- Etiqueta de identificação: NHPT 20980
Camas: 2
Banhos: 2
126
Apartamento | Alto Padrão | T2 | Jardins Júlio Graça
- 592.000€
- Etiqueta de identificação: NHPT 20979
Camas: 2
Banhos: 2
131
Apartamento | Alto Padrão | T2 | Jardins Júlio Graça
- 592.000€
- Etiqueta de identificação: NHPT 20978
Camas: 2
Banhos: 2
123