Lote | Terreno | 254m2 | Gião

Área (m²) 254
  • 70.000€
NHPT 20677

Informação geral

Descrição

NH JG 20677

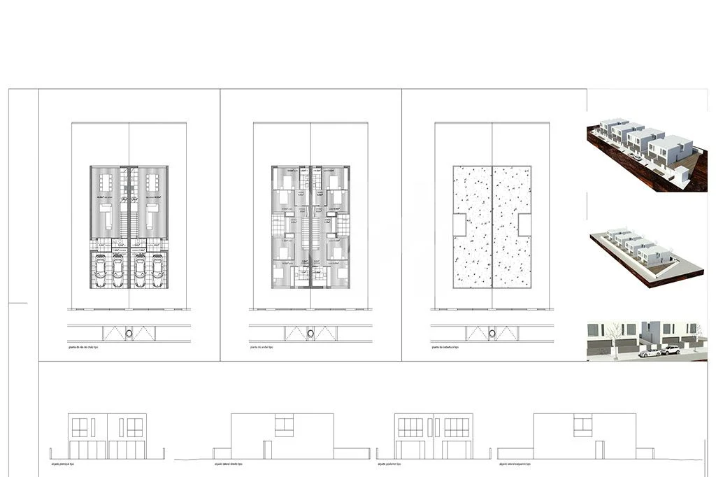
Lote com 254m2, para venda, com orientação solar  - Sul – Poente - Nascente, permite a construção de moradia de 3 frentes estando inserido em loteamento para 8 moradias geminadas.

Área de implantação------------------------ 115 m²

  • Área total de construção--------------------230m²
  • Com garagem e área social cozinha e sala de estar ao nível do R/c e com a zona privativa no piso superior.

Este loteamento para venda está muito bem situado e próximo das melhores vias de comunicação rodoviária (cinco minutos da nacional 13 e da A.28).

Ler mais

Brochura do imóvel

Visão Geral do Imóvel

  • Área Total (m²) 254
  • Área de Implantação 115
  • Área de construção 230
  • Área do terreno (m²) 254
  • Cidade Vila do Conde

Certificação energética

Detalhes a Considerar

Detalhes do layout

Estimate Payments

Looking to Buy or Sell? Get Expert Guidance Today!

Contact us now for a free consultation and let our team of experts guide you through the process. 

Agende uma Visita

Immersive Experience

Get Expert Assistance